






Va propunem un apartament de doua camere in zona 1 Mai , in apropiere de mijloacele de transport in comun, parc si alte facilitati.
Apartamentul este situat la etajul 4 al unui imobil finalizat in anul 2022, izolat termic pe exterior si securizat cu video- interfon.
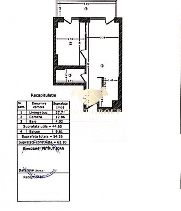
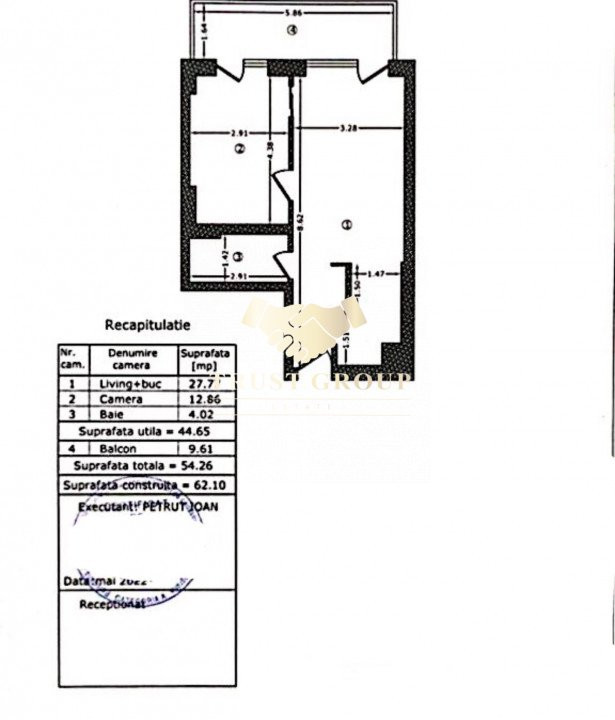
Dispune de o suprafata totala de 68 mp, este semidecomandat si compartimentat astfel: living, bucatarie, dormitor, baie, hol, spatiii de depozitare si un balcon.
Apartamentul se preteaza ca si locuinta de familie sau investitie si se vinde mobilat si utilat .
Contracost se poate achiziționa un loc de parcare subteran .
-Clasa energetica : A
*Proprietatea a fost verificata si este valabila, confirmarea fiind facuta, atat timp cat este la promovare.
*Pentru mai multe detalii si pentru programarea unei vizionari, sunati in orice zi intre orele 09:00 si 21:00 inclusiv in week-end incepand cu ora 10:00 pana la 22:00.