










Va propunem un apartament de doua camere in zona Domenii , in apropiere de mijloacele de transport in comun, parc si alte facilitati.
Apartamentul este situat la etajul 5 al unui imobil finalizat in anul 2012, izolat termic pe exterior si securizat cu video-interfon.
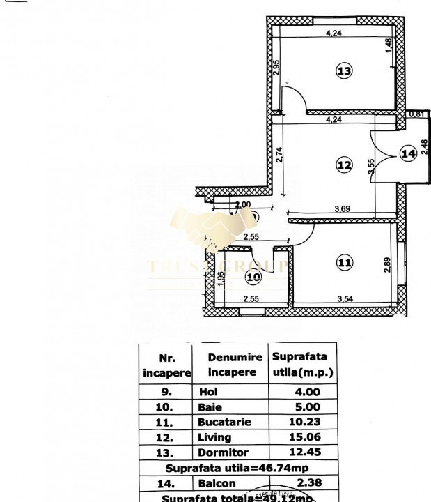
Dispune de o suprafata totala de 142,60 mp, este semidecomandat si compartimentat astfel: living, bucatarie, dormitor, baie, hol, spatiii de depozitare , un balcon si o terasa de 74 mp
Apartamentul se preteaza ca si locuinta de familie sau investitie si se vinde mobilat si utilat .
-Clasa energetica : A
*Proprietatea a fost verificata si este valabila, confirmarea fiind facuta, atat timp cat este la promovare.
*Pentru mai multe detalii si pentru programarea unei vizionari, sunati in orice zi intre orele 09:00 si 21:00 inclusiv in week-end incepand cu ora 10:00 pana la 22:00.