



Va propunem spre vanzare un apartament luminos și bine compartimentat, situat la etajul 8 din 10 al unui bloc solid și întreținut, cu lift funcțional si reabilitat termic.
Beneficiază de o priveliște frumoasa asupra orașului și o poziție excelentă – în inima cartierului Vitan, la câteva minute de stația de metrou Dristor, București Mall, supermarketuri, farmacii, școli și restaurante.
✅ Detalii principale:
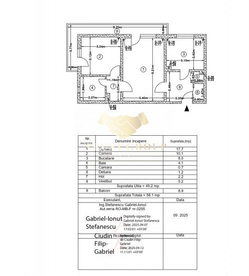
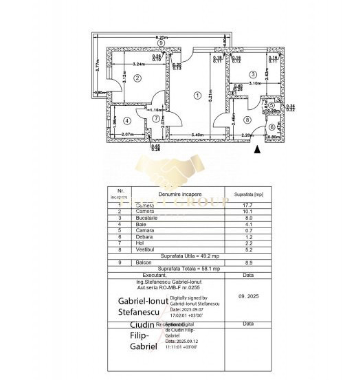
2 camere, compartimentare practică, zonă liniștită și civilizată
Bloc întreținut, acces securizat
In curs de renovare: instalatii electrice si sanitare complet schimbate, finisaje moderne, iar in functie de preferintele dumneavoastra pot fi ajustate.
Gata de mutare imediată – fără investiții suplimentare
Ideal pentru tineri profesioniști, cupluri sau investitori care caută o locuință modernă, într-o zonă centrală, sigură și foarte bine conectată la restul orașului.
📞 Contactează-ne pentru detalii și vizionare!