
























Penthouse de tip duplex de 3 camere situat intr-un bloc tip boutique de 7 etaje cu termen de finalizare martie 2024. Imobilul beneficiaza de fatada ventilata cu placi HPL si caramida aparanta tip Klinker, termoizolatia va fi compusa din vata minerala bazaltica (Rockwool) de grosime 10cm pe intreaga suprafata a fatadei. Compartimentarea perimetrala se face cu caramida Porotherm - 40 cm. Contorizare pentru fiecare apartament (gaz, apa, energie electrica) in locuri special amenajate pe fiecare etaj. Iuliminatul spatiilor comune se va realiza prin intermediul panourilor fotovoltaice.
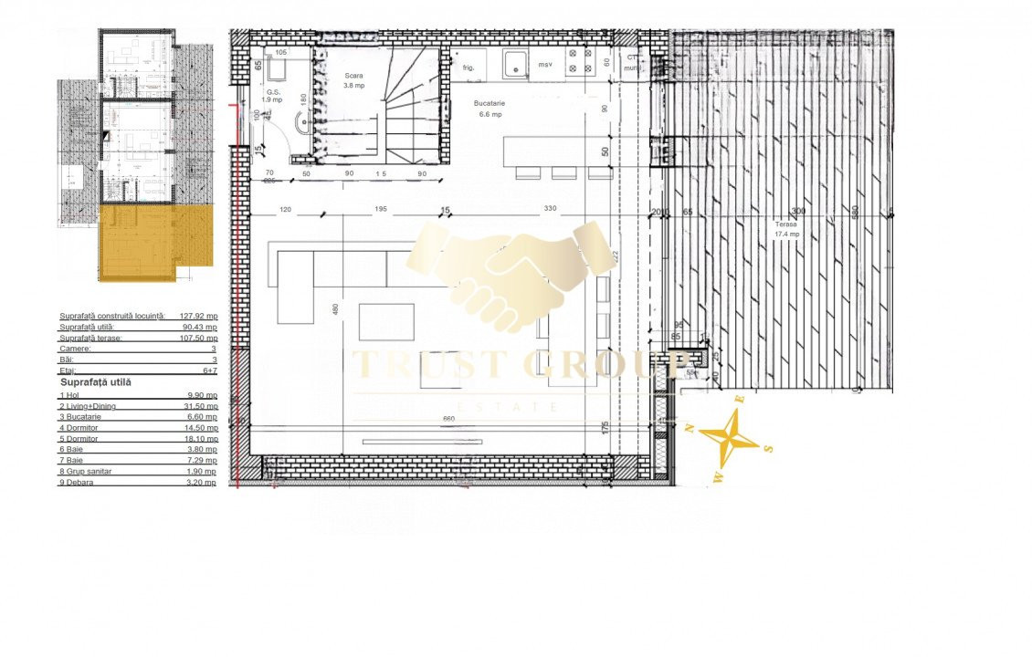
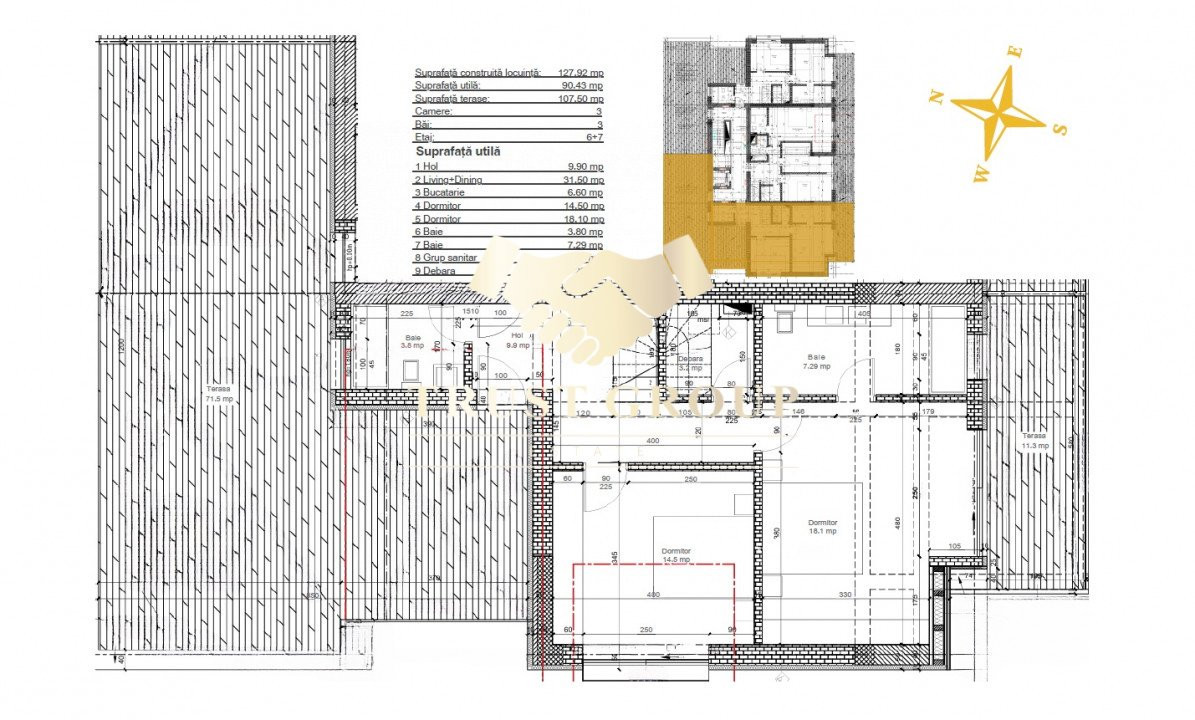
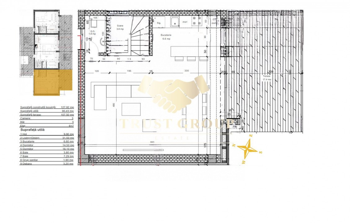
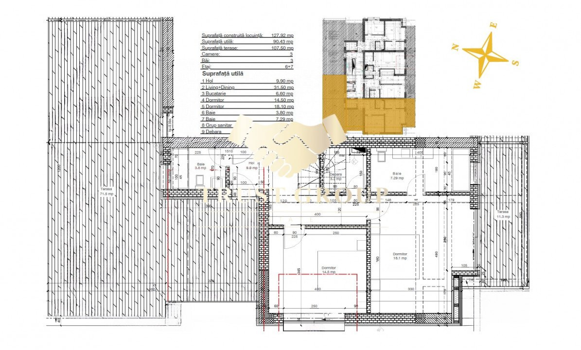
Duplexul se afla la etajele 6 si 7,este decomandat, are 2 grupuri sanitare si o suprafata utila de 90mp la care se adauga 2 terase generoase de 100mp. Duplexul se va livra complet finisat, cu materiale premium de cea mai buna calitate. Dintre finisaje putem enumera:
Usile de interior vor fi tip Filomuro.
Sistemul de incalzire al apartamentului va fi prin pardoseala - marca TECE, cu posibilitatea control on/off prin smartphone.
Apartamentele vor fi echipate cu un sistem de aerisire cu recuperare de caldura.
Compartimentarea apartamentelor se va realiza din caramida tip Porotherm - 30 cm, 20cm, 15cm in fuctie de arhitectura.
Tavanele vor fi din rigips, finisate cu vopsea lavabila de culoare alba.
Pardoseala va fi placata cu parchet triplu stratificat in camerele de tip living/dormitor/hol.
Baile si bucatarile vor fi placate cu placi ceramice de la Delta Studio.
Apartamentul va fi echipat cu centrala termica Viessmann Vitodens.
Apartamentul va fi echipat cu aparataje electrice - marca Schneider.
Se va face pregatirea traseului frigorific pentru climatizare.
Baile vor fi echipate cu baterii - marca KLUDI si cu obiecte sanitare - marca KLUDI
Pardoseala aferenta teraselor va fi placata cu deck.
Tamplarie din Aluminiu Schuco avand culoarea gri antracit. Profilul tip AWS 65, feroneria ascunsa.
Se pot achizitiona si locuri de parcare in subteran la -1 sau -2 la pretul de 20k+tva