







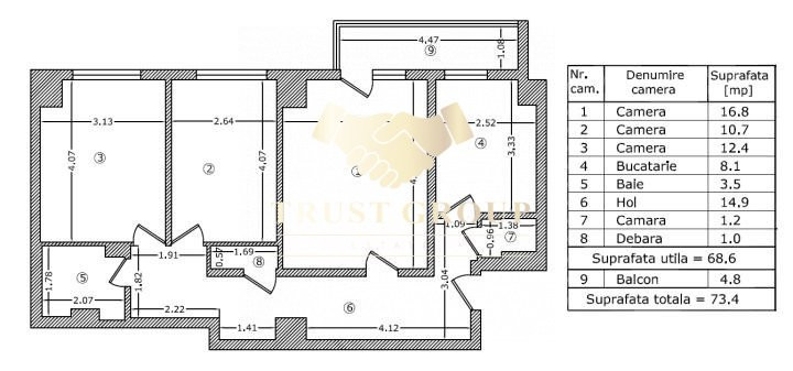
Se oferă spre vânzare apartament de 3 camere, confort 1, decomandat, situat la etajul 1 al unui bloc finalizat în 1978, la intersecția bulevardelor Titulescu și Banul Manta. Suprafața utilă este de 71,77 mp, apartamentul fiind nemodificat față de planurile originale și conform cu schița cadastrală.
În anul 2024 au fost înlocuite toate țevile pe coloanele de încălzire, apă rece și caldă, precum și robineții de serviciu. Apartamentul este dotat cu contoare de apă rece și caldă cu transmisie radio.
Accesul în scara blocului este securizat prin interfon și cod de acces, iar zona comună este monitorizată video.
Apartamentul necesită renovare și finisaje, ceea ce oferă viitorului proprietar posibilitatea de amenajare după propriul gust.