

























Va propunem un apartament cu 3 camere in zona Ultracentrala, in apropiere de mijloacele de transport in comun, parc si alte facilitati.
Apartamentul este situat la etajul 7 al unui imobil finalizat in anul 2012, izolat termic pe exterior si securizat cu interfon.
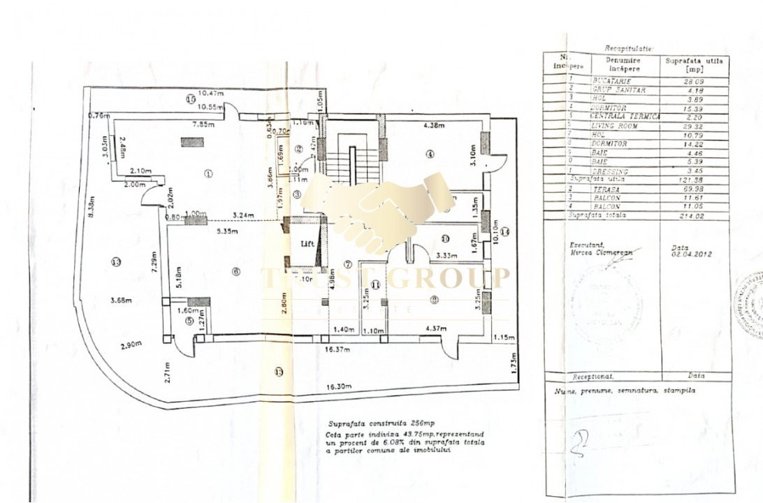
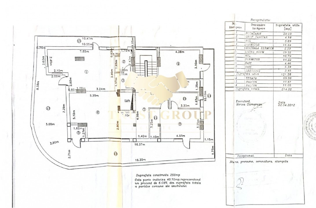
Dispune de o suprafata de 122mp utili si 214 suprafata impreuna cu tot cu terasa ,este decomandat, cu multe spatii de depozitare si dressing-uri, se incalzeste cu centrala proprie.
Apartamentul se preteaza ca si locuinta de familie sau investitie.
Loc de parcare inclus in pret, cu posibilitate de achizitie a mai multor locuri de parcare.
-Clasa energetica : A
*Proprietatea a fost verificata si este valabila, confirmarea fiind facuta, atat timp cat este la promovare.
*Pentru mai multe detalii si pentru programarea unei vizionari, sunati in orice zi intre orele 09:00 si 21:00 inclusiv in week-end incepand cu ora 10:00 pana la 22:00.