





Va propunem un apartament de trei camere in zona Cismigiu , in apropiere de mijloacele de transport in comun, parc si alte facilitati.
Apartamentul este situat la etajul 5 al unui imobil finalizat in anul 1982 , izolat termic pe exterior si securizat cu interfon.
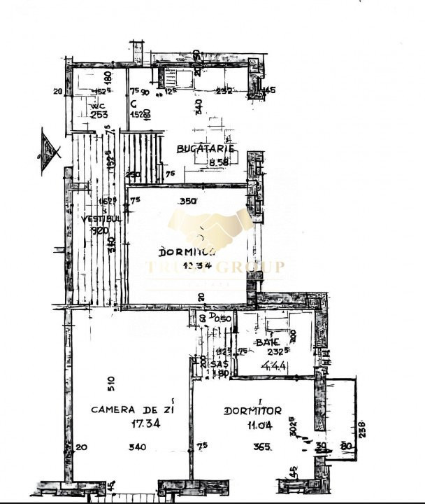
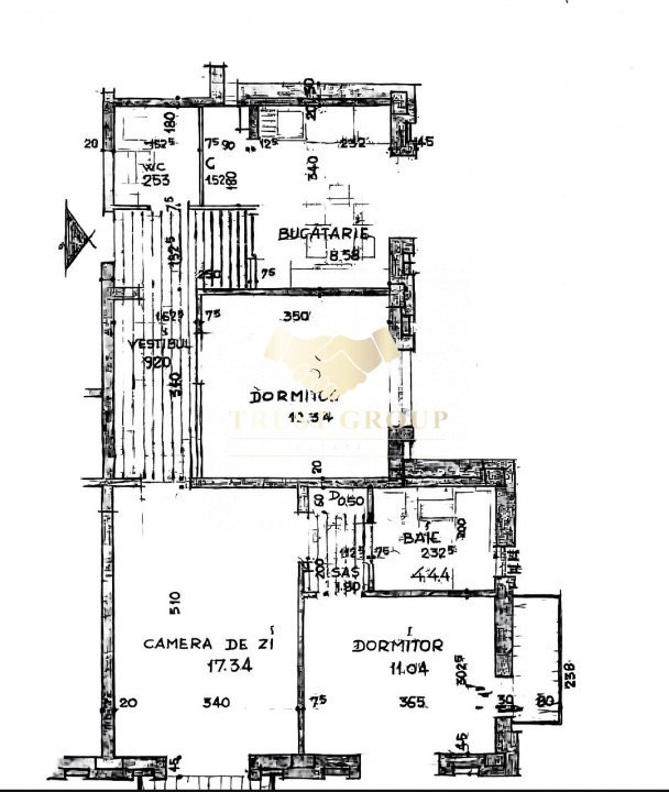
Dispune de o suprafata totala de 81,65 mp, este semidecomandat si compartimentat astfel: living, bucatarie, doua dormitoare, doua bai, hol, spatiii de depozitare si doua balcoane.
Apartamentul se preteaza ca si locuinta de familie sau investitie si se vinde parțial mobilat .
-Clasa energetica : A
*Proprietatea a fost verificata si este valabila, confirmarea fiind facuta, atat timp cat este la promovare.
*Pentru mai multe detalii si pentru programarea unei vizionari, sunati in orice zi intre orele 09:00 si 21:00 inclusiv in week-end incepand cu ora 10:00 pana la 22:00.