
















Vă prezentăm un apartament elegant, cu 3 camere, situat la etajul 2 al unui imobil modern construit în 2006, în una dintre cele mai dorite zone ale Capitalei – Dorobanți – Floreasca.
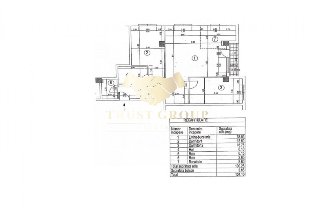
Cu o suprafață de 104 mp și o suprafață construită de 118 mp, locuința a fost complet renovată recent, folosindu-se materiale și finisaje premium, alese cu grijă împreună cu designeri profesioniști.
Apartamentul se vinde complet mobilat și utilat, fiind gata pentru mutare imediată, fără investiții suplimentare.
Detalii și compartimentare:
3 camere spațioase (living luminos și 2 dormitoare confortabile)
2 băi moderne
1 bucătărie complet utilată
1 balcon generos
Etaj 2 / 6, într-un imobil S+P+6E finalizat în 2005
Încălzire: centrală termică de imobil prin calorifere
Răcire: sistem de aer condiționat tip climatizare
Avantaje:
Localizare premium în zona Dorobanți – Floreasca
Acces facil la restaurante, cafenele, școli, parcuri și zone de business
Apartament luminos, cu design modern și finisaje de calitate superioară
Ideal atât ca locuință de familie, cât și ca investiție sigură