









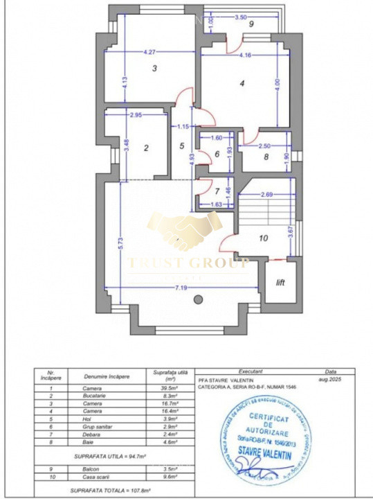
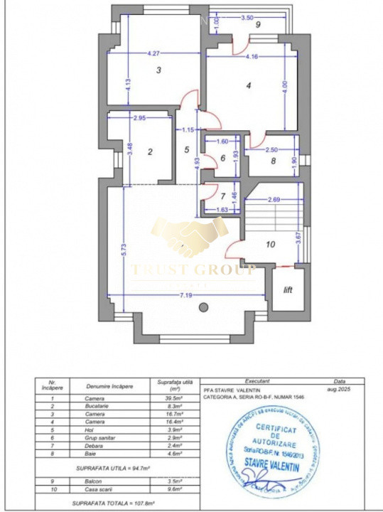
Vă prezentăm o proprietate tip apartament cu 3 camere, decomandat, situată în București, zona Obor, într-un imobil tip bloc construit în anul 2020, la etajul 1 din 5.
Apartamentul dispune de o suprafață totală de 107 mp și este compartimentat eficient, oferind un echilibru optim între zona de zi și cea de noapte.
Compartimentare:
3 camere
1 bucătărie
2 băi
1 balcon
Finisaje și dotări:
pereți finisați cu vopsea lavabilă și faianță
pardoseli din parchet și gresie
ferestre cu tâmplărie termopan
sistem de încălzire prin pardoseală
Contorizare individuală:
apometre
contor căldură
contor gaz
contor energie electrică
Imobilul beneficiază de:
interfon și videointerfon
sistem de supraveghere video
lift
Utilități generale: curent electric, apă, canalizare, gaz.
Proprietatea este amplasată într-o zonă excelent conectată, în imediata apropiere regăsindu-se Metrou Obor, Piața Obor și Mall Veranda, precum și numeroase spații comerciale, financiare, educaționale, medicale și de relaxare.
Acces rapid și facil către mijloacele de transport în comun, ceea ce face această proprietate potrivită atât pentru locuire, cât și pentru investiție.