




Apartament cu standard nZEB in zona Dorobanti Floreasca, pe strada linistita, trafic auto foarte redus, et 2/3 cu acces in casa direct din lift sau scara.
Apartamentul se afla intr-o cladire P+2E+M constructie 2024 cu curte proprie in care mai exista inca doua unitati locative: un apartament + o mansarda, un apartament/nivel. Toata cladirea este construita la standard nZEB si are o perfomanța energetică foarte ridicată, necesarul de energie din surse conventionale este foarte scăzut și este acoperit în cea mai mare parte cu energie din surse regenerabile (sistem panouri solare + pompa de caldura Nibe Suedia + incalzire in pardoseala Henco Floor Belgia + racire ventilo convector) cu tamplarie high end Reynaers aluminiu cu geam tripan, termoizolatie 15/20 cm vata minerala Rockwool, fatada sud ventilata pin nordic LUNAWOOD - Holver.
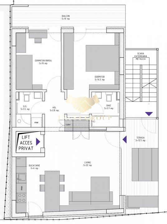
Apartamentul este compus din: zona de zi cu living si bucatarie + terasa (6 x 2.1 m) + baie, si zona noapte formata din dormitor master cu baie proprie + dormitor secundar, ambele cu acces pe terasa nr.2 (7 x 1.4 m). Apartamentul detine si un loc de parcare suprateran acoperit, cu acces catre lift care te duce direct in living + spatii comune din cladire si curte (27%). Terasele sunt finisate cu deck pin nordic. Compartimentarea interioara este realizata integral cu caramida + tencuiala, nu exista gips-carton sau alte materiale cu standard scazut. Usi filomuro.
Constructia cladirii este documentata riguros cu toate fisele tehnice ale materialelor folosite, documente foto/video ale tuturor etapelor si lucrarilor ascunse, cu garantie constructor.