


















Vă prezentăm o proprietate deosebita, amplasată într-un imobil emblematic din inima Capitalei, la doar 2 minute de mers pe jos de stația de metrou Piața Romană. Acest apartament cu 3 camere îmbină armonios eleganța arhitecturală, confortul modern și o panoramă spectaculoasă asupra orașului.
📐 Date esențiale ale proprietății
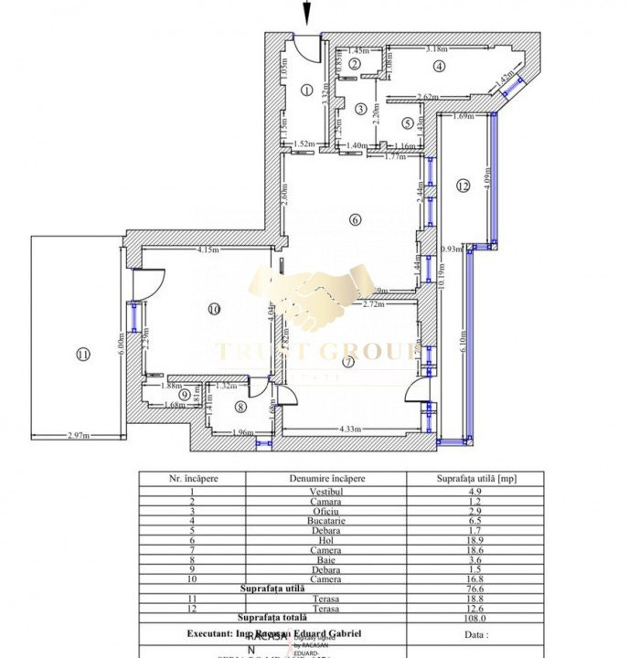
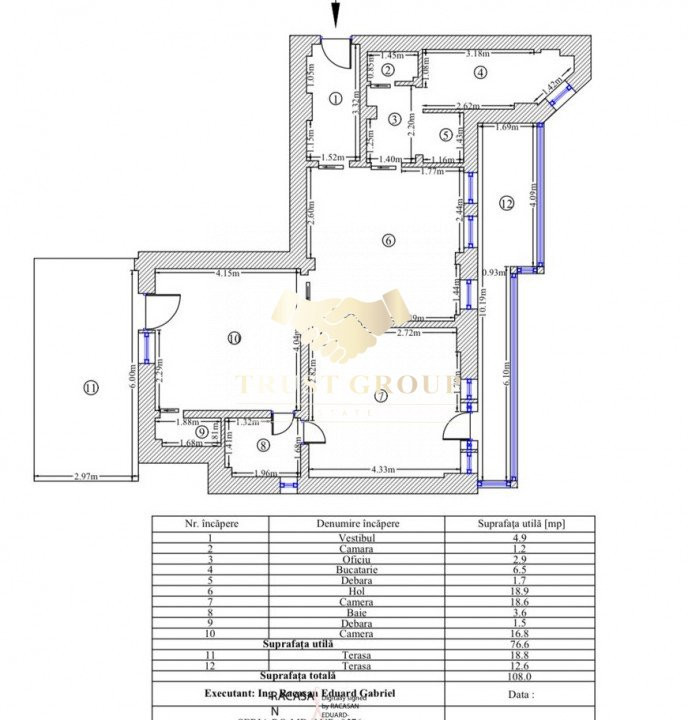
Suprafață utilă: 77 mp
Balcon închis: 12 mp
Terasă panoramică: 19 mp – ideală pentru relaxare, cu o vedere superbă datorită poziționării la etajul 8/9
Compartimentare practică: spații aerisite și luminoase, recent renovate
🛋️ Detalii despre apartament
Complet mobilat și utilat – amenajare recentă cu finisaje moderne și funcționale
Vedere liberă – fără obstacole vizuale, lumină naturală din abundență
Ideal pentru: locuință personală, reședință de serviciu sau investiție (Airbnb / închiriere long-term)
🏢 Despre imobil
Construit în 1946, semnat de arhitecții renumiți Liviu Ciulei și Emil Prager
Dotat cu 3 lifturi funcționale și centrală termică proprie (înlocuită recent)
Clasificat cu risc seismic II dar asigurat, anumite banci pot credita acest imobil
Acces facil la:
Metrou Romană – 200 m
STB – 100 m
Teatrul Nottara (la parter)
Restaurante, magazine, școli, grădinițe
💼 Un plus pentru investitori
Zona este extrem de căutată pentru închiriere, atât în regim hotelier (Airbnb), cât și pe termen lung, oferind un randament excelent.
📞 Pentru detalii suplimentare sau programarea unei vizionări, vă stăm cu drag la dispoziție.
----------------------------------------------------------------------------------------------------------------------------------------------------------------------------
We are pleased to present a rare opportunity to acquire a fully renovated, furnished and equipped apartment, located just 2 minutes’ walk from Piața Romană metro station. This elegant 3-room residence combines modern comfort, architectural heritage, and a superb city view from a spacious terrace.
📐 Property Highlights
Usable Area: 77 sqm
Enclosed Balcony: 12 sqm
Panoramic Terrace: 19 sqm – perfect for outdoor relaxation, located on the 8th floor out of 9
Bright & Smart Layout: recently refurbished, well-distributed rooms with natural light
🛋️ Apartment Features
Sold fully furnished & equipped – stylish design with modern finishes
Unobstructed Views – full of natural daylight and skyline perspectives
Perfect for: personal residence, corporate housing, or investment (Airbnb / long-term rental)
🏢 About the Building
Built in 1946, designed by renowned Romanian architects Liviu Ciulei and Emil Prager
Equipped with 3 elevators and a recently upgraded central heating system
Classified under Seismic Risk II
Premium location with direct access to:
Metro (Piața Romană) – 200 m
STB bus/tram – 100 m
Nottara Theatre on the ground floor
Numerous restaurants, boutiques, schools, and kindergartens nearby
💼 Excellent Investment Potential
Located in one of Bucharest's most desirable neighborhoods, this apartment offers strong rental income potential, whether in short-term (Airbnb) or long-term rental formats.
📞 Contact us for further details or to schedule a private viewing!