


















Pe Barbu Delavrancea, una dintre cele mai căutate străzi din București, la colțul Parcului Kiseleff și aproape de Piața Victoriei, apare rar o locuință care să ofere atât spațiu, lumină și confort, cât și o locație fără compromis. Și iată-l: un apartament de excepție, care nu doar că există, ci așteaptă să devină căminul tău.
Ce îl face unic:
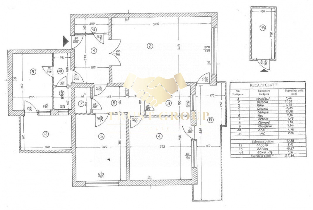
Suprafață generoasă: 77,68 mp utili, care, împreună cu două balcoane de 16,27 mp și o boxă de 3,91 mp, însumează aproape 100 mp de spațiu util – raritate absolută în centrul orașului.
Compartimentare inteligentă: 3 camere luminoase, o baie mare, un grup sanitar, bucătărie și multiple spații de depozitare (debarale și cămară) – pentru un stil de viață practic și confortabil.
Confort și calitate: holul spațios, parchetul din lemn masiv, geamul la baie și lumina naturală abundentă fac din acest apartament un spațiu aerisit, primitor și elegant.
Avantaje de neegalat:
Etajul 3 într-un bloc de 10 etaje, construit în 1976 și reabilitat termic, asigură confort termic și siguranță.
Locație premium: la doi pași de Piața Victoriei, consulatul italian, mijloace de transport în comun, școli prestigioase (Pia Brătianu, Liceul Tudor Vianu), cafenele, restaurante și zone de recreere.
Libertate totală: apartamentul este liber, pregătit pentru renovare, ceea ce îți permite să-l personalizezi după gustul tău, păstrând doar finisajele de calitate existente.
De ce merită atenția ta:
Apartamente de această dimensiune și în această zonă apar extrem de rar. Este combinația perfectă între spațiu generos, funcționalitate reală și locație premium – oportunitatea pe care nu vrei să o ratezi.