
































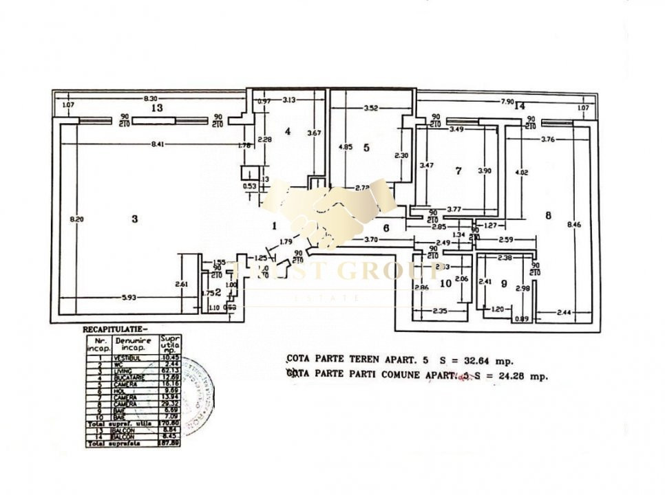
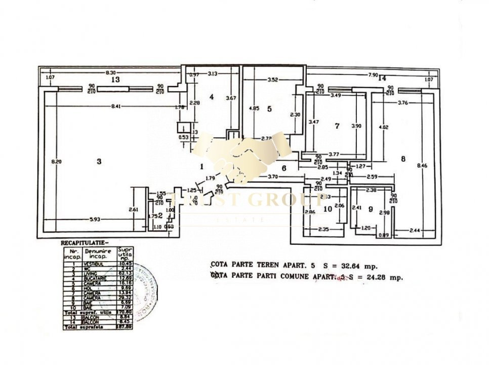
Va prezentam un apartament deosebit situat in Dorobanti, in apropierea Pietei Dorobanti, pe o strada foarte linistita si exclusivista. Apartamentul este situat intr-un bloc constructie 2012 si care dispune de 2 locuri de parcare, 1 in subteran, 1 la suprateran, precum si cota parte teren si spatii comune.
Accesul in bloc si in imobil se face doar cu cartela sau la comanda proprietarului, inclusiv la chemarea liftului, care are acces direct in casa, in afara casei scarii.
Finisaje interioare sunt de calitate Lux, cu Eclectrocasnice Miele, mozaic, marmura si tapet de cea mai buna calitate. De asemenea apartamentul dispune de 2 balcoane de aproximativ 9 mp fiecare pe aproape toata suprafata apartamentului. Luminile ambientale dispuse si prin tavan, cu multiple culori ofera un ambient deosebit potrivit pentru orice moment. Jaluzele actionate prin simpla apasare a unui buton faciliteaza si in acelasi timp ofera confort in ceea ce priveste ambientul.
Va asteptam oricand pentru vizionari!