



























Descoperiți un apartament exclusivist cu 4 camere, amplasat într-un imobil boutique unde se regasesc parter si 3 , în inima celui mai prestigios bulevard din București – Aviatorilor. Finalizat în 2024, acest bloc rezidențial oferă un nivel de intimitate greu de găsit, cu doar câte un apartament pe fiecare etaj, oferind o atmosferă discretă și exclusivistă.
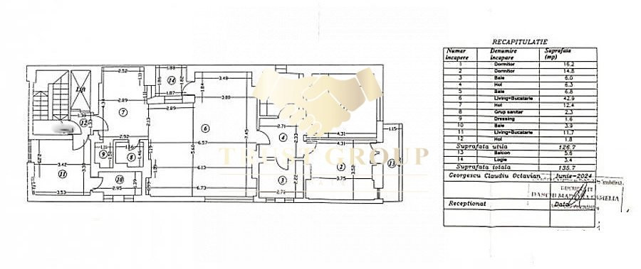
Cu o suprafață utilă de 125 mp si un balcon de 9 mp, apartamentul impresionează prin spațiile vitrate mari care inundă camerele cu lumină naturală pe tot parcursul zilei. Finisajele premium se remarcă prin eleganță și calitate, iar centrala termică proprie asigură un confort desăvârșit pe tot parcursul anului. Fiecare detaliu a fost gândit pentru a oferi un stil de viață modern și confortabil.
Această proprietate include și un loc de parcare, o necesitate rară și valoroasă în zonă. În doar 3 minute de mers pe jos pe Bulevardul Aviatorilor, ajungeți la Parcul Herăstrău sau Kiseleff, locuri ideale pentru relaxare și recreere. În plus, sunteți la o distanță de doar câțiva pași de cele mai exclusiviste restaurante și cafenele din oraș, ceea ce face ca această locație să fie una dintre cele mai dorite din București.
Accesul la metroul Aviatorilor, aflat la doar două minute de apartament, oferă o conectivitate excelentă cu restul orașului, făcând din acest apartament nu doar o locuință ideală pentru o familie, ci și o investiție strategică pe termen lung. Într-o zonă unde astfel de proprietăți sunt extrem de rare și căutate, acest apartament devine un adevărat vis împlinit pentru cei care apreciază luxul, confortul și intimitatea.
-Clasa energetica : A
*Pentru mai multe detalii si pentru programarea unei vizionari, sunati in orice zi intre orele 09:00 si 21:00 inclusiv in week-end incepand cu ora 10:00 pana la 22:00.