





Apartament situat la etajul 6 al unui imobil nou, recepționat și livrat la începutul anului 2011, conceput ca un proiect rezidențial exclusivist, amplasat într-o zonă centrală a Bucureștiului. Proprietatea beneficiază de acces facil către principalele mijloace de transport în comun, dar în același timp oferă liniște, intimitate și priveliști ample către Parcul Circului și zona de Nord a orașului.
Poziționarea excelentă asigură deschideri generoase către Floreasca, Herăstrău și Casa Presei Libere, zona fiind completată de toate facilitățile și punctele de interes necesare unui stil de viață modern și confortabil.
Imobilul dispune de 3 niveluri de subsol, proiectate pentru a asigura suficiente locuri de parcare pentru toate apartamentele. Structura de rezistență este realizată cu incintă de piloți forați secanți, cu excavație până la adâncimea de -11 m, sub nivelul pânzei freatice, oferind un grad ridicat de siguranță și stabilitate.
Dotările clădirii includ lift Schindler, centrală termică Buderus cu arzător Weishaupt, panouri solare Buderus Logasol (40 mp), pază umană și supraveghere video 24/7, sistem automat de detectare și stingere a incendiilor, sistem de detectare și evacuare a noxelor din subsol, precum și sistem de degivrare pentru rampa de acces către parcarea subterană.
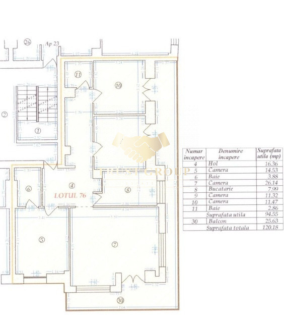
Apartamentul are o suprafață utilă de 94,55 mp, completată de o terasă generoasă de 25,63 mp, ideală pentru relaxare și pentru a profita de priveliștile deschise oferite de poziționarea la etaj superior.