




















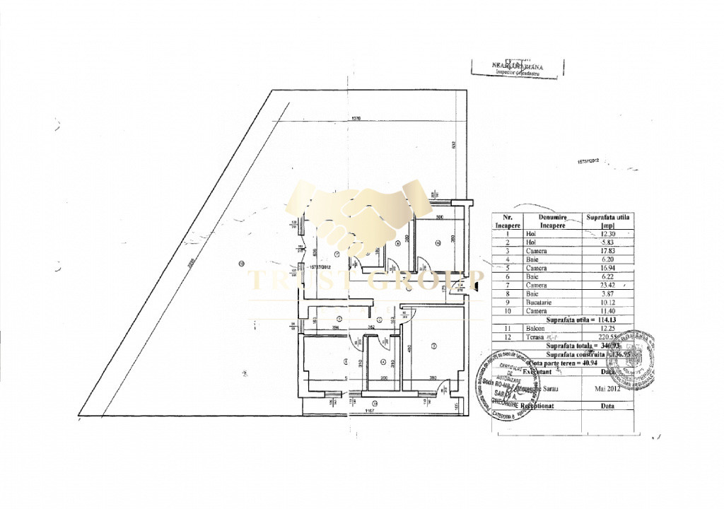
Penthouse situat la etajul 5, în zona Calea Plevnei cu vedere panoramică spectaculoasă și o terasă de 230 mp.
Apartamentul are 115 mp utili, este compartimentat în 4 camere: living, 3 dormitoare, 2 băi și dressing. Proprietatea este renovată, mobilată complet și dispune de centrală termică proprie.
Imobilul beneficiază de pază 24h, iar terasa generoasă oferă un spațiu rar întâlnit în zonă, ideal pentru relaxare, dining outdoor sau amenajare lounge.
Detalii principale:
Etaj 5
115 mp utili
230 mp terasă panoramică
4 camere
3 dormitoare
2 băi
Dressing
Renovat și mobilat complet
Centrală proprie
Pază 24h
Ideal pentru locuire sau investiție, într-o zonă centrală foarte bine poziționată.