










Va propunem spre vanzare o casa in Zona Cotroceni.
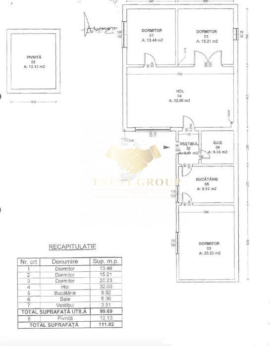
Aceasta este dispusa pe parter+pod mansardabil. Suprafata construita fiind de 112m2.
Casa este compusa din 4 camere, o bucatarie, o baie si o pivnita.
Este situata intr-o curte comuna de 390mp, din care 195mp sunt in proprietatea imobilului.
Pentru mai multe detalii va asteptam la o vizionare.