




























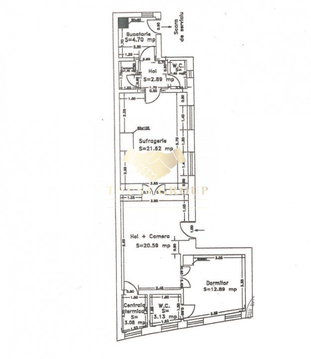
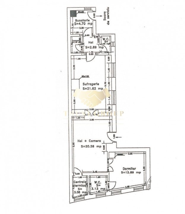
Acest imobil unic, format din două corpuri de clădire cu regim de înălțime P+2, este ideal pentru diverse utilizări, fie rezidențiale, fie comerciale. Ambele corpuri sunt separate de o curte interioară de 85 mp, oferind un spațiu privat și funcțional. Cu o suprafață totală de 325 mp utili, imobilul include 10 camere, 2 bucătării și 6 grupuri sanitare, fiind o opțiune excelentă pentru activități precum notariat, birou de avocatură, spațiu comercial, restaurant sau școală.
Corpul A este construit in anii 50, iar corpul B in 2004
În trecut, proprietatea a funcționat ca școală privată, iar structura sa oferă flexibilitate pentru diferite tipuri de afaceri. Menționăm că în corpul A există un apartament de 3 camere la etajul 2, deținut de un alt proprietar, însă există posibilitatea ofertării acestuia pentru o eventuală achiziție completă a clădirii.
Pentru vizionări sau informații suplimentare, vă stăm la dispoziție!