








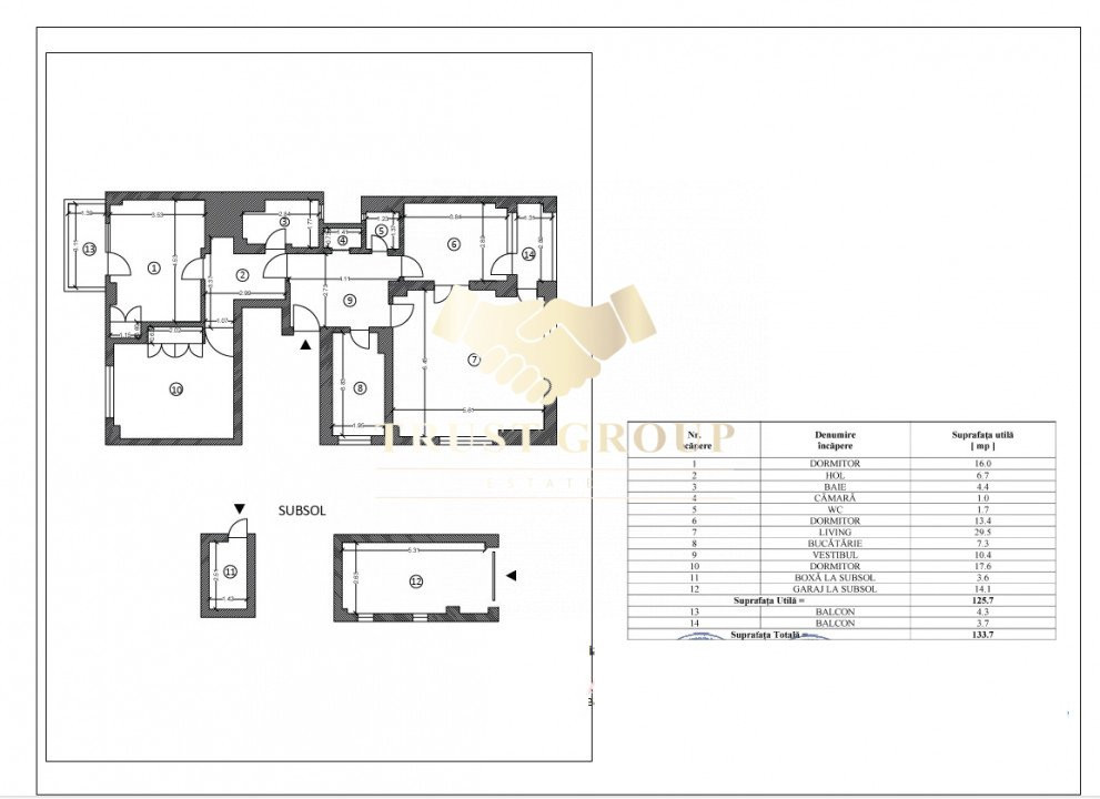
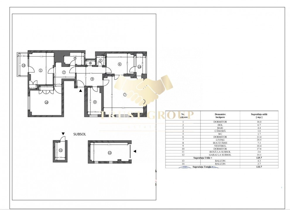
Va propunem un apartament de patru camere in zona Primăverii , in apropiere de mijloacele de transport in comun, parc si alte facilitati.
Apartamentul este situat la parterul înalt al unui imobil finalizat in anul 1995 , securizat cu interfon.
Dispune de o suprafata de 133 mp, este decomandat si compartimentat astfel: living, bucatarie, trei dormitoare, doua bai, hol, spatiii de depozitare si trei balcoane.
Apartamentul se preteaza ca si locuinta de familie sau investitie si se vinde parțial mobilat si utilat , impreuna cu un loc de parcare subteran si o boxa .
-Clasa energetica : A
*Proprietatea a fost verificata si este valabila, confirmarea fiind facuta, atat timp cat este la promovare.
*Pentru mai multe detalii si pentru programarea unei vizionari, sunati in orice zi intre orele 09:00 si 21:00 inclusiv in week-end incepand cu ora 10:00 pana la 22:00.