
















Vila este racordată la toate utilitățile – gaz, apă, canalizare și curent trifazic (putere instalată 30 kW) – și este pregătită pentru viitor, având circuite dedicate pentru panouri solare, pompă de căldură și stație de încărcare pentru mașini electrice.
Puncte forte:
Construcție solidă, integral din beton armat și cărămidă Porotherm
Tâmplărie tripan Salamander BlueEvolution 92 cu sticlă de 52 mm, Low-E 4 anotimpuri
Încălzire în pardoseală TECE, centrală Vaillant
Scara interioară din marmură Calacatta, cu balustradă din sticlă securizată
Acoperiș din tablă Lindab
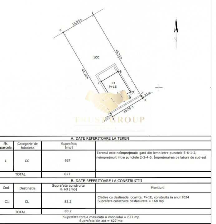
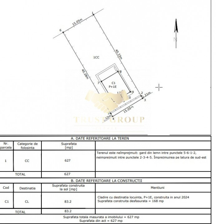
Teren generos, 627 mp, complet împrejmuit
Finisaje premium, vilă predată la cheie
Compartimentare:
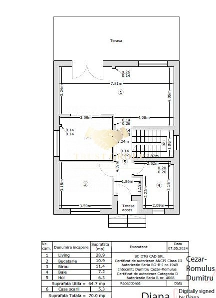
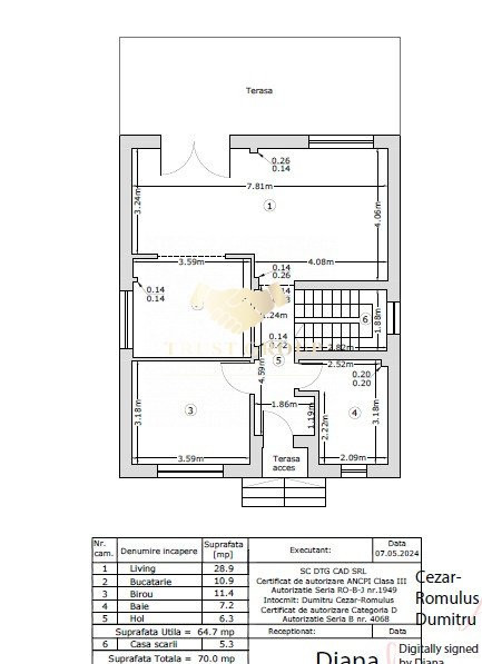
📍 Parter: living luminos cu acces pe terasa acoperită de 25 mp, bucătărie deschisă, dormitor/birou, baie complet echipată și hol generos.
📍 Etaj: dormitor matrimonial cu dressing, baie proprie și balcon privat, plus două dormitoare secundare deservite de o baie comună.
Deasupra etajului se află podul tehnic, cu placă de beton turnată și înălțime de 2,35 m pe mijloc – ideal pentru depozitare sau amenajare suplimentară.