



















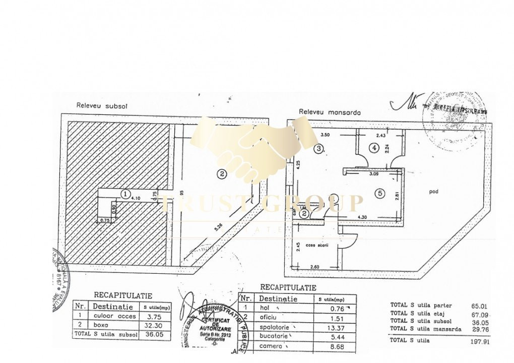
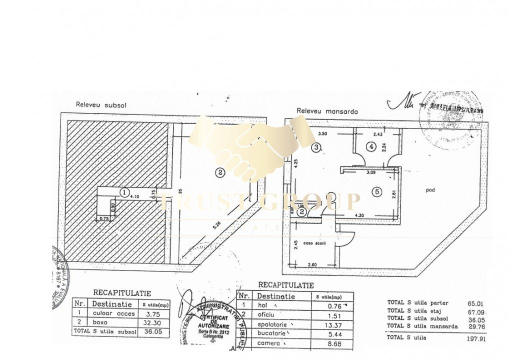
Va propunem o casa situata pe D+P+1+M constituita din 6 camere in zona Matei Voievod, in apropiere de mijloacele de transport in comun, parc si alte facilitati.
Casa este construita in anul 1935 zolata termic pe exterio.
Dispune de o suprafata de 197mp.
Apartamentul se preteaza ca si locuinta de familie sau investitie.
-Clasa energetica : A
*Proprietatea a fost verificata si este valabila, confirmarea fiind facuta, atat timp cat este la promovare.
*Pentru mai multe detalii si pentru programarea unei vizionari, sunati in orice zi intre orele 09:00 si 21:00 inclusiv in week-end incepand cu ora 10:00 pana la 22:00.