



































Această vilă se află într-o locație privilegiată, într-o zonă rezidențială foarte bună, în imediata apropiere a Parcului Circului. Cu acces rapid către arterele principale precum Șoseaua Ștefan cel Mare, Barbu Văcărescu, Calea Floreasca, Calea Dorobanților și zona de birouri Aviației-Pipera, este ideal poziționată pentru cei care apreciază conexiunile excelente.
Imobilul, dispus pe trei nivele, respectiv parter plus două etaje, se remarcă prin arhitectura modernă, compartimentarea eficientă și spații generoase și luminoase. Finisajele de înaltă calitate adaugă un aer de eleganță și rafinament. O caracteristică distinctivă este curtea individuală amenajată cu gazon și o terasă, oferind un spațiu perfect pentru relaxare și petrecerea timpului în aer liber.
Cu o suprafață desfășurată de 250 mp și o suprafață utilă totală de 203 mp, imobilul are o amprentă la parter de 82 mp, iar grădina însumează 70 mp. Suprafața totală a terenului este de 150 mp, având o deschidere stradală de 9 metri liniari. Construcția solidă, din beton și cărămidă Porotherm, conferă siguranță și durabilitate.
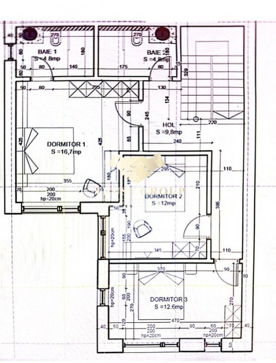
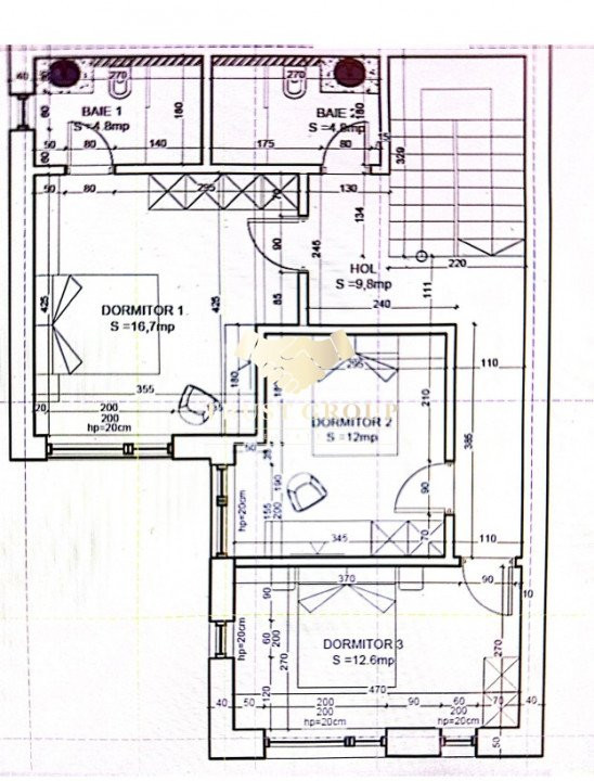
Interiorul vilei oferă confortul și intimitatea dorite, cu 6 camere spațioase, 4 băi și 2 dressinguri. La parter se găsește un living generos, o bucătărie închisă, un dressing și o baie, completate de o terasă care se deschide către grădină. La etajul 1, se află un dormitor matrimonial cu dressing și baie proprie dotată cu cadă freestanding, alături de alte două dormitoare deservite de o baie comună.